Каркасный дом 8х10
Площадь помещений
156.2 м2
Спальных комнат
4
Этажей
2
| Стоимость | от 2 945 500 ₽ |
Описание
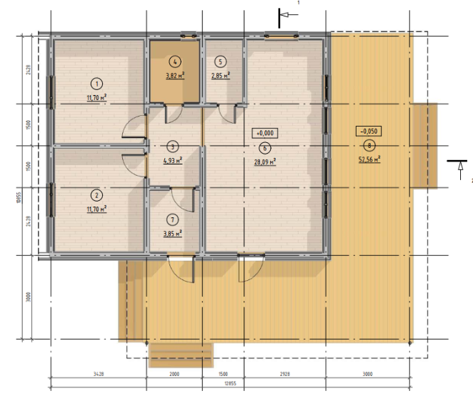
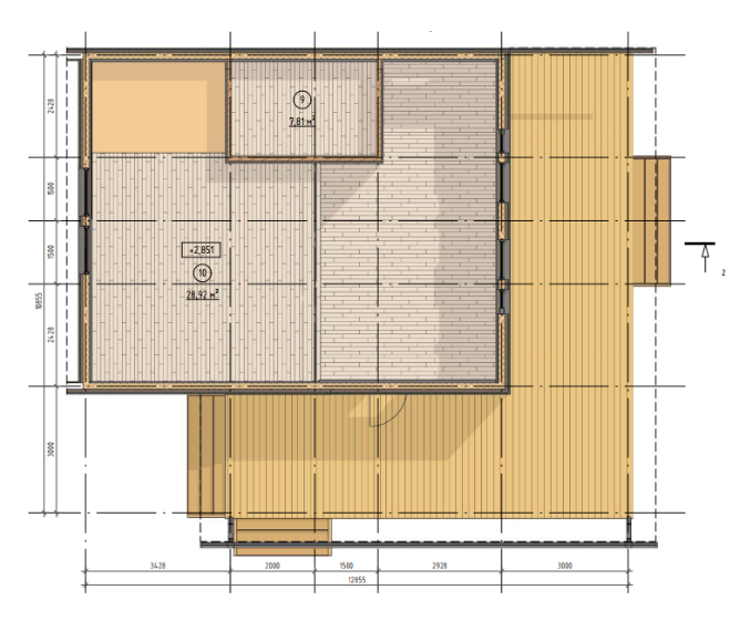
Проект барнхауса 8×10 м — это просторный, светлый дом, выполненный в актуальном для загородного жилья стиле. Благодаря продуманной архитектуре, большие окна и высокие потолки обеспечивают много естественного света внутри, а площадь помещений 156,2 м² открывает широкие возможности для планировки. Дом хорошо подходит для большой семьи или круглогодичного проживания, позволяя обустроить отдельные спальни, гостиную, кухню, рабочий кабинет и любые вспомогательные зоны.
Особое внимание привлекает просторная терраса под главным фасадом — идеальное место для летнего отдыха или проведения семейных ужинов на свежем воздухе. Экстерьер сочетает вертикальное и горизонтальное деревянное оформление, подчеркивающее современность и лаконичность архитектуры. Такой дом гармонично вписывается в природу и позволяет реализовать как сдержанные, так и более индивидуальные интерьерные решения.
Особое внимание привлекает просторная терраса под главным фасадом — идеальное место для летнего отдыха или проведения семейных ужинов на свежем воздухе. Экстерьер сочетает вертикальное и горизонтальное деревянное оформление, подчеркивающее современность и лаконичность архитектуры. Такой дом гармонично вписывается в природу и позволяет реализовать как сдержанные, так и более индивидуальные интерьерные решения.
Все гарантии, сроки и стоимость указываем в договоре
Работаем по официальному договору
Гарантия на дом 5 лет
Фиксированная оплата выполненных работ
Мебель
Анапа, Улица Некрасова, 110А
Часы работы:
ПН-ПТ 9:30-17:30
ПН-ПТ 9:30-17:30
Каркасные дома
Гостагаевская,
Первомайская 60Г
Первомайская 60Г
Часы работы:
ПН-ПТ 9:30-17:30
СБ 9:00-14:00
ПН-ПТ 9:30-17:30
СБ 9:00-14:00
Окна и двери
Гостагаевская,
Первомайская 60Г
Первомайская 60Г
Часы работы:
ПН-ПТ 9:30-17:30
СБ 9:00-14:00
ПН-ПТ 9:30-17:30
СБ 9:00-14:00
Обратная связь
Свяжитесь с нами, если вы стремитесь создавать современные дома, наполненные индивидуальностью и функциональными решениями. В ЮМОК вы найдете команду профессионалов, для которых важно использовать современные технологии и идеи в строительстве, а также возможность работать над проектами, которые становятся настоящим украшением любого участка.
Отправляя данные вы даете согласие на обработку персональных данных