Каркасный дом 7,5х9,5
Площадь помещений
118 м2
Спальных комнат
3
Этажей
2
| Стоимость | от 2 307 000 ₽ |
Описание
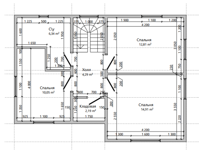
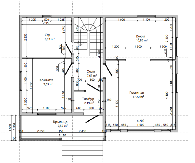
Классический каркасный дом 7,5×9,5 м комфортно сочетает просторную планировку с уютной внешней архитектурой. Большая площадь помещений — 118 м² — позволяет удобно организовать семейное пространство на двух этажах. Кровля с чистым рисунком и выразительный фасад с отделкой под дерево создают элегантный внешний вид, гармонирующий с природным ландшафтом.
Благодаря продуманной планировке, в доме найдётся место для просторной гостиной, кухни, нескольких спален, хозяйственных и технических помещений. Открытая веранда, большие окна и добротные материалы делают этот вариант отличным решением для постоянного проживания или загородного отдыха. Дом подходит для тех, кто ценит комфорт, надежность и традиционную эстетику в современном исполнении.
Благодаря продуманной планировке, в доме найдётся место для просторной гостиной, кухни, нескольких спален, хозяйственных и технических помещений. Открытая веранда, большие окна и добротные материалы делают этот вариант отличным решением для постоянного проживания или загородного отдыха. Дом подходит для тех, кто ценит комфорт, надежность и традиционную эстетику в современном исполнении.
Все гарантии, сроки и стоимость указываем в договоре
Работаем по официальному договору
Гарантия на дом 5 лет
Фиксированная оплата выполненных работ
Корпусная мебель
Анапа, Улица Некрасова, 110А
Часы работы:
ПН-ПТ 9:30-17:30
ПН-ПТ 9:30-17:30
Каркасные дома и окна
Гостагаевская, Первомайская 60Г
Часы работы:
ПН-ПТ 9:30-17:30
СБ 9:00-14:00
ПН-ПТ 9:30-17:30
СБ 9:00-14:00
Обратная связь
Свяжитесь с нами, если вы стремитесь создавать современные дома, наполненные индивидуальностью и функциональными решениями. В ЮМОК вы найдете команду профессионалов, для которых важно использовать современные технологии и идеи в строительстве, а также возможность работать над проектами, которые становятся настоящим украшением любого участка.
Отправляя данные вы даете согласие на обработку персональных данных