А-фрейм 7.5х8.0
Площадь помещений
68,2 м2
Спальных комнат
1
Этажей
2
| Стоимость | от 1 782 500 ₽ |
Описание
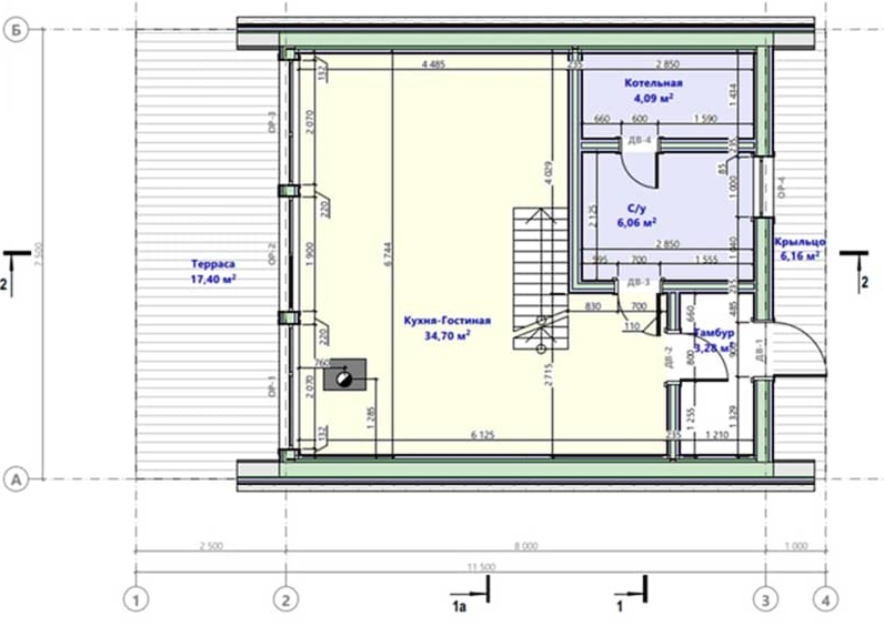
Каркасный дом А-фрейм 7,5×8,0 — это удачное сочетание лаконичной архитектуры и функциональности. Общая площадь строения составляет 92 м², а жилая — 68,2 м², что позволяет с комфортом организовать все необходимые зоны для отдыха и проживания. Первый этаж включает просторную кухню-гостиную (34,7 м²), вместительную террасу и крыльцо, а также отдельные помещения под санузел, котельную и тамбур, что особенно удобно для круглогодичного использования.
Второй этаж дополнен светлой спальней и холлом, создающими уединённую приватную зону. Благодаря большим панорамным окнам дом наполнен естественным светом и визуально выходит за свои границы, открывая вид на окружающий ландшафт. Простота формы, современный подход к планировке и тёплая атмосфера делают этот проект интересным решением для тех, кто ценит гармонию с природой и эстетику минимализма.
Второй этаж дополнен светлой спальней и холлом, создающими уединённую приватную зону. Благодаря большим панорамным окнам дом наполнен естественным светом и визуально выходит за свои границы, открывая вид на окружающий ландшафт. Простота формы, современный подход к планировке и тёплая атмосфера делают этот проект интересным решением для тех, кто ценит гармонию с природой и эстетику минимализма.
Все гарантии, сроки и стоимость указываем в договоре
Работаем по официальному договору
Гарантия на дом 5 лет
Фиксированная оплата выполненных работ
Корпусная мебель
Анапа, Улица Некрасова, 110А
Часы работы:
ПН-ПТ 9:30-17:30
ПН-ПТ 9:30-17:30
Каркасные дома и окна
Гостагаевская, Первомайская 60Г
Часы работы:
ПН-ПТ 9:30-17:30
СБ 9:00-14:00
ПН-ПТ 9:30-17:30
СБ 9:00-14:00
Обратная связь
Свяжитесь с нами, если вы стремитесь создавать современные дома, наполненные индивидуальностью и функциональными решениями. В ЮМОК вы найдете команду профессионалов, для которых важно использовать современные технологии и идеи в строительстве, а также возможность работать над проектами, которые становятся настоящим украшением любого участка.
Отправляя данные вы даете согласие на обработку персональных данных